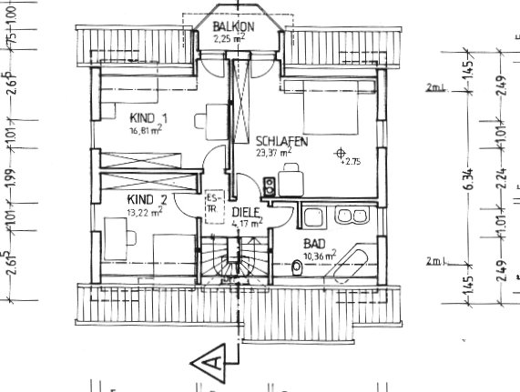
Dachgeschoß